#2537967 Capannone industriale con uffici
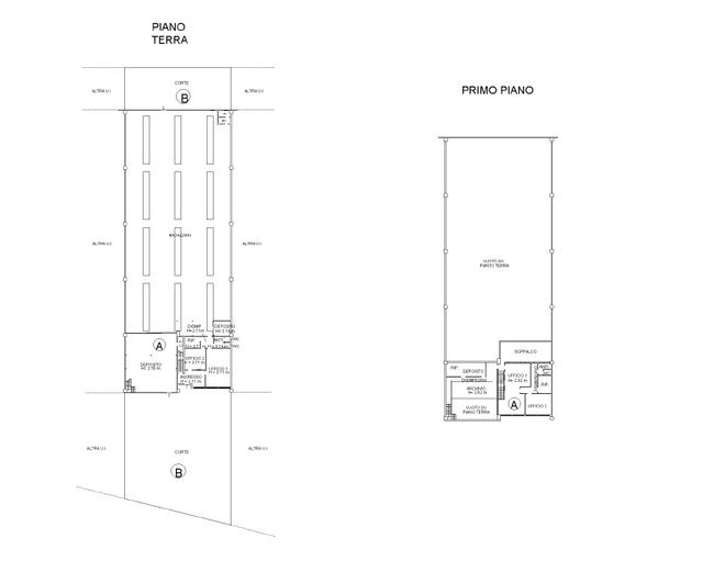
Proponiamo in vendita un capannone industriale situato a Pradamano (UD), in via Pier Paolo Pasolini n. 35, inserito in una consolidata zona produttiva a sud-est del capoluogo Udine, distante circa 7 km. L’immobile è collocato in un contesto densamente edificato, caratterizzato dalla presenza di capannoni di medie e grandi dimensioni, rendendolo particolarmente adatto ad attività produttive, artigianali o logistiche. La zona è ben servita sia dalla viabilità principale, grazie ai collegamenti garantiti dalle adiacenti SR56 e SP37, sia dai servizi di trasporto pubblico, con fermate nelle immediate vicinanze. La stazione ferroviaria di riferimento è quella di Buttrio, situata a circa 5 km. Il capannone fa parte di un complesso a schiera ed è dotato di area pertinenziale esclusiva, funzionale alle operazioni di carico, scarico e movimentazione. Al suo interno si sviluppano una zona produttiva, uffici e servizi, offrendo una soluzione completa e ben organizzata per lo svolgimento dell’attività. La proprietà presenta una superficie commerciale di circa 1.239 mq, oltre a un’area esterna esclusiva di circa 618 mq. Grazie alla sua posizione, alle superfici disponibili e alla distribuzione funzionale degli spazi, l’immobile rappresenta un’interessante opportunità per imprese alla ricerca di un capannone operativo in un contesto produttivo ben collegato.
Dettagli
- Tipologia inserzionistaAzienda
- Ragione Socialeabilio - quimmo
- Partita IVA02410510396
- Comune inserzionistaFaenza (RA)
Posizione del bene
- Italia, Pradamano - Udine
Contatta l'inserzionista
AZIENDA
abilio - quimmo
oppure











