#2638864 Ampio complesso industriale
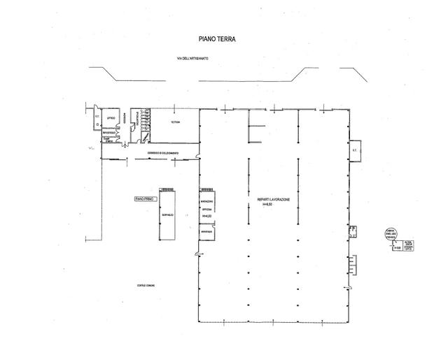
Proponiamo in vendita un ampio complesso immobiliare a destinazione commerciale/produttiva, situato nel Comune di San Benedetto Po, al margine nord del paese, all’interno dell’area industriale. L’accesso principale avviene da via dell’Artigianato, collegata direttamente alla Strada Statale 413, importante asse viario di connessione con Modena. Il compendio si estende su un’area complessiva di circa 41.344 mq, con una superficie scoperta di circa 33.965 mq, ed è costituito da più fabbricati realizzati in epoche differenti, attualmente dismessi (dal 2014) e precedentemente destinati alla produzione industriale. Il primo edificio, disposto su due livelli, ospita al piano terra uffici e showroom (circa 524 mq) e al primo piano due unità abitative (circa 176 mq oltre balcone). Segue un ampio fabbricato monopiano di circa 1.741 mq, ad uso magazzino. Un ulteriore corpo di fabbrica comprende uffici al piano terra (circa 277 mq) con soppalco allo stato grezzo (277 mq), oltre a tettoia per ricovero macchinari (227 mq) e tunnel di collegamento (223 mq). Completa il complesso un grande edificio produttivo di circa 4.324 mq, dotato di vie di corsa per carroponte, con annessi locali tecnici e di servizio. L’area esterna, in parte asfaltata e in parte in battuto di cemento, è attrezzata con manufatti accessori tra cui cabina elettrica e strutture di servizio, ed è delimitata da recinzione con accessi carrabili. Dal punto di vista urbanistico, l’area è classificata come “ambiti prevalentemente produttivi” e presenta una capacità edificatoria complessiva di circa 17.427 mq di superficie coperta. Considerando i fabbricati esistenti, il compendio offre una capacità edificatoria residua di oltre 10.000 mq, elemento che offre interessanti prospettive di ampliamento e sviluppo." Grazie alle ampie superfici, alla configurazione degli edifici e alla posizione strategica, il complesso rappresenta un’interessante opportunità per attività produttive, logistiche, commerciali o per operazioni di riqualificazione e sviluppo immobiliare.
Dettagli
- Tipologia inserzionistaAzienda
- Ragione Socialeabilio - quimmo
- Partita IVA02410510396
- Comune inserzionistaFaenza (RA)
Posizione del bene
- Italia, San Benedetto Po - Mantova
Contatta l'inserzionista
AZIENDA
abilio - quimmo
oppure











