#2537280 Capannone con impianto fotovoltaico
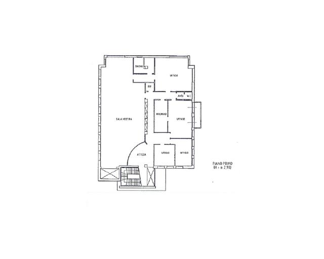
Proponiamo in vendita a Bassano del Grappa (VI), in Strada Marchesane 297, capannone industriale con impianto fotovoltaico. L’immobile si sviluppa su due livelli fuori terra e si colloca in posizione strategica, adiacente a una strada ad alto scorrimento e a circa 1 km dal centro storico della città. Al piano terra si trova il laboratorio artigianale, un ampio locale con altezza interna di 4 metri, corredato da servizi igienici, ideale per attività produttive o di deposito. Al piano primo sono disposti gli uffici, accessibili da scala interna, suddivisi in ambienti funzionali mediante pareti modulari e rifiniti con pavimenti in gres, serramenti in PVC e controsoffitti in fibra minerale. L’area esterna, di circa 630 mq, circonda l’immobile su tre lati ed è in parte adibita a parcheggio e in parte a viabilità, garantendo spazi di manovra e funzionalità. Un importante valore aggiunto è rappresentato dall’impianto fotovoltaico da 32,4 kWp installato in copertura e attivo dal 2011, che consente produzione di energia pulita con autoconsumo e cessione delle eccedenze in rete tramite convenzione SSP con il GSE. Soluzione ideale per imprese che cercano spazi produttivi e direzionali con un’ottima visibilità e un vantaggio economico ed energetico grazie alla presenza dell’impianto fotovoltaico. (le sole foto dell'impianto fotovoltaico si riferiscono al momento dell'installazione)
Dettagli
- Tipologia inserzionistaAzienda
- Ragione Socialeabilio - quimmo
- Partita IVA02410510396
- Comune inserzionistaFaenza (RA)
Posizione del bene
- Italia, Bassano del Grappa - Vicenza
Contatta l'inserzionista
AZIENDA
abilio - quimmo
oppure











