#2638740 Edificio storico
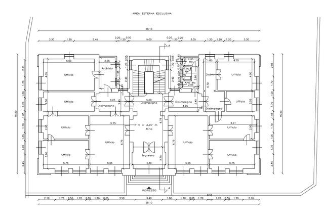
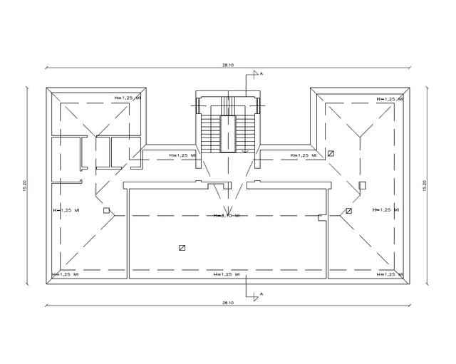
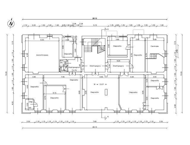
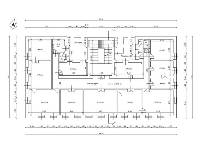
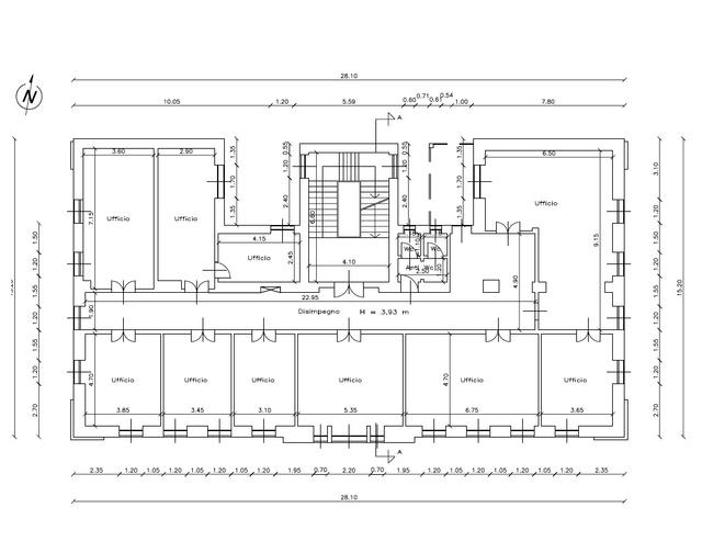
Proponiamo in vendita prestigioso edificio storico cielo-terra situato a Gorizia, in Via Giacomo Leopardi 6, in posizione centrale e a ridosso del centro storico cittadino. Il contesto urbano è caratterizzato prevalentemente da edifici residenziali di piccola e media altezza, villette con giardino, scuole e attività commerciali di prossimità, rendendo la zona ben servita e facilmente accessibile. L’immobile, ex sede del Provveditorato agli Studi di Gorizia, è un fabbricato storico realizzato nei primi anni del ’900, libero su quattro lati e sviluppato su quattro piani fuori terra oltre a un piano seminterrato, per una superficie lorda complessiva di circa 2.070 mq. Gli spazi fuori terra, pari a 1.254 mq, ospitano ambienti prevalentemente destinati ad uffici distribuiti tra piano terra, primo e secondo. Il piano terzo (sottotetto) sviluppa una superficie di circa 395 mq, mentre il piano seminterrato, di circa 421 mq, è destinato a locali deposito e autorimessa. Completa la proprietà una ampia area esterna pertinenziale di circa 844 mq, adibita in parte a verde e sviluppata prevalentemente sul retro dell’edificio lungo via Ippolito Nievo, che contribuisce a valorizzare ulteriormente la struttura garantendo spazi aperti e indipendenza. L’immobile è soggetto a vincolo diretto ai sensi del D.Lgs. 42/2004 e, secondo il PRG vigente, ricade in zona omogenea destinata a servizi urbani e di quartiere, rendendolo particolarmente adatto a destinazioni istituzionali, direzionali, formative o ricettive. Classe energetica: F – EPgl 194,67 kWh/mq anno.
Dettagli
- Tipologia inserzionistaAzienda
- Ragione Socialeabilio - quimmo
- Partita IVA02410510396
- Comune inserzionistaFaenza (RA)
Posizione del bene
- Italia, Gorizia - Gorizia
Contatta l'inserzionista
AZIENDA
abilio - quimmo
oppure











