#2638067 Ufficio piano primo e parcheggi interrati
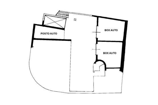
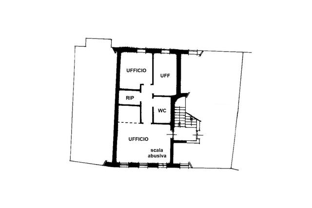
Ufficio con pertinenze sito ad Arzignano (VI), via Cisalpina 14/3 angolo via Castellana. Il contesto è centrale con traffico regolare. La zona è urbanizzata, dotata di ogni servizio e caratterizzata da abitazioni, botteghe e attività terziarie. L’area è prossima al centro storico e ben collegata alla rete infrastrutturale periferica. L’unità è parte di un vecchio edificio completamente ristrutturato nel 1997. Agibilità rilasciata. Ufficio piano primo con accesso dal vano scala senza ascensore e con portone fronte strada. Composto da tre ambienti principali divisi da corridoio centrale, ripostiglio e bagno cieco. Finiture curate. Impianti sottotraccia. Climatizzazione autonoma con radiatori e split. Rilevate difformità da sanare. Varco con scala verso altrui proprietà da chiudere. Sono di pertinenza due garage e un posto auto serviti da sistema montauto. Condizioni ottime. Beni mobili e arredi esclusi dalla vendita. Superficie commerciale: 142,46 mq Classe energetica F PIANO PRIMO Ufficio: 80,43 mq PIANO INTERRATO Tre parcheggi: 99,88 mq Immobile descritto nella perizia allegata come LOTTO 3
Dettagli
- Tipologia inserzionistaAzienda
- Ragione Socialeabilio - quimmo
- Partita IVA02410510396
- Comune inserzionistaFaenza (RA)
Posizione del bene
- Italia, Arzignano - Vicenza
Contatta l'inserzionista
AZIENDA
abilio - quimmo
oppure











