#2638576 Ampio ufficio
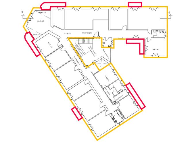
Proponiamo in vendita un ufficio di ampia metratura situato in Alessandria, Via Lombroso 14, inserito nel quartiere Pista Vecchia, nella fascia semicentrale sud della città. L’immobile è collocato al piano primo di un fabbricato condominiale composto da cinque piani fuori terra e un piano seminterrato, posizionato tra Via Lombroso e Via Wagner. L’unità, a destinazione direzionale, presenta una distribuzione interna articolata e funzionale, composta da 13 locali ad uso ufficio, tre bagni, spogliatoi separati per sesso e quattro balconi. La presenza di tre accessi indipendenti, unita alla doppia esposizione su quattro fronti, rende l’immobile particolarmente luminoso e idoneo a un eventuale frazionamento, risultando ideale per studi professionali, sedi operative o attività che necessitano di spazi flessibili. Completano la proprietà due cantine poste al piano primo interrato, utili come spazi di deposito e archivio. La posizione è strategica: l’immobile dista circa 1 km dalla stazione ferroviaria e 500 metri dal centro cittadino, dove si concentrano i principali uffici pubblici. Tramite Viale Don Orione e Viale Massobrio è inoltre possibile raggiungere comodamente l’ospedale cittadino, situato a circa 3 km. Soluzione interessante per chi ricerca un ufficio di rappresentanza o un immobile direzionale con elevato potenziale di valorizzazione, in un contesto urbano ben servito e facilmente accessibile.
Dettagli
- Tipologia inserzionistaAzienda
- Ragione Socialeabilio - quimmo
- Partita IVA02410510396
- Comune inserzionistaFaenza (RA)
Posizione del bene
- Italia, Alessandria - Alessandria
Contatta l'inserzionista
AZIENDA
abilio - quimmo
oppure











