#2638716 Uffici esclusivi e flessibili in affitto di 1.230 mq
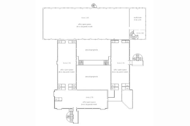
In una posizione strategica alle porte di Milano, proponiamo in affitto uffici di rappresentanza in Via Cassanese, 100 a Segrate, situati lungo una delle principali direttrici che collega il centro città a tangenziali, autostrade, Brebemi e all’Aeroporto di Linate, tutti facilmente raggiungibili. Gli spazi, per una superficie complessiva di circa 1.230 mq e posti al primo piano dell'edificio, sono stati progettati con soluzioni flessibili che permettono di adattare gli ambienti di lavoro a qualsiasi esigenza aziendale, unendo funzionalità, tecnologia e immagine. All’interno dell’edificio sono inoltre disponibili altre due soluzioni alternative di uffici in affitto, con metrature differenti. Il complesso si sviluppa in un corpo principale fronte strada su tre livelli, affiancato da altri fabbricati e da un magazzino su due piani che racchiudono un elegante giardino interno, uno spazio riservato ideale per ritagliarsi momenti di pausa a contatto con la natura. Completano la proprietà oltre 50 posti auto, con possibilità di affitto separato. Una soluzione ideale per aziende moderne che cercano visibilità, comfort e un ambiente rappresentativo, capace di valorizzare l’immagine aziendale.
Dettagli
- Tipologia inserzionistaAzienda
- Ragione Socialeabilio - quimmo
- Partita IVA02410510396
- Comune inserzionistaFaenza (RA)
Posizione del bene
- Italia, Segrate - Milano
Contatta l'inserzionista
AZIENDA
abilio - quimmo
oppure











