#25684 Ufficio duplex e garage in centro storico
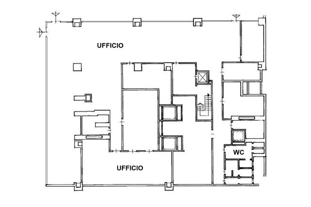
Ufficio sito a Genova (GE), via Fieschi 7 e via Gabriele d’Annunzio. Il contesto è centrale con traffico elevato. La zona è urbanizzata, dotata di ogni servizio, prossima al centro storico e a Piazza De Ferrari. L’area è ben collegata alla rete infrastrutturale, al porto marittimo e alle sue attrazioni. L’unità è parte di un grande complesso ad esclusiva destinazione terziaria e direzionale chiamato Centro dei Liguri. Struttura realizzata intorno al 1980, dotata di un grande autosilo interrato, e servita da mezzi pubblici e linea della metropolitana. Ufficio duplex ai piani terra e primo di una ala della struttura, serviti da ballatoi e passerelle pubbliche, oltre a scale e ascensore interni. Gli ambienti sono ampi, con finiture standard, dotati di climatizzazione ad aria, controsoffitti e pareti di arredo. Il garage è al piano quarto sottostrada dell’autosilo e ospita circa 22 posti auto. Condizioni discrete. Presente materiale di vario genere. Superficie commerciale: 1516 mq circa Piena proprietà di: CF: Sezione GEA – Foglio 97 – Particella 594 – Subalterno 1072 – A/10 CF: Sezione GEA – Foglio 97 – Particella 594 – Subalterno 1073 – C/6
Dettagli
- Tipologia inserzionistaAzienda
- Ragione Socialeabilio - quimmo
- Partita IVA02410510396
- Comune inserzionistaFaenza (RA)
Posizione
- Posizione beneItalia, Genova - Genova
Contatta l'inserzionista
AZIENDA
abilio - quimmo
oppure











