#2537983 Complesso industriale e commerciale a reddito
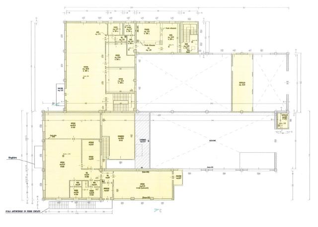
Ottima opportunità d’investimento: proponiamo in vendita un complesso industriale e commerciale completamente a reddito, situato in posizione strategica a Ferrara, tra Via Veneziani e Via Albinoni. Il fabbricato, cielo-terra di due piani, è stato recentemente ristrutturato e offre ampi spazi versatili ideali per attività artigianali, commerciali e direzionali. Caratteristiche principali • Superficie piano terra: 1.055 m² • Superficie primo piano: 570 m² • Corte pertinenziale privata • Immobile libero su quattro lati, con parcheggi dedicati a ciascuna attività • Contesto periferico a vocazione artigianale e commerciale, ottimamente servito e a soli 5 km dall’uscita Ferrara Sud dell’A13 Il complesso è attualmente locato a 7 inquilini affidabili e di lunga permanenza, attivi nel piccolo commercio, artigianato e servizi d’ufficio. La redditività è solida e interessante, rendendo l’operazione ideale per investitori alla ricerca di un asset stabile e già performante. Il fabbricato include anche un appartamento residenziale (ex alloggio del custode) ubicato al piano primo, attualmente libero ed in buone condizioni composto da soggiorno/cucina, camera da letto e bagno. Infine il compendio comprende anche un locale ad uso ufficio ubicato in Via Falcone 70, anch’esso locato a studio professionale. Il contesto è residenziale semiperiferico. Queste sono le sue caratteristiche in sintesi di quest’ultimo immobile: circa 70 m² totali, composto al piano terra da un locale con bagno ed un archivio al piano seminterrato.
Dettagli
- Tipologia inserzionistaAzienda
- Ragione Socialeabilio - quimmo
- Partita IVA02410510396
- Comune inserzionistaFaenza (RA)
Posizione del bene
- Italia, Ferrara - Ferrara
Contatta l'inserzionista
AZIENDA
abilio - quimmo
oppure











