#2639120 Complesso industriale
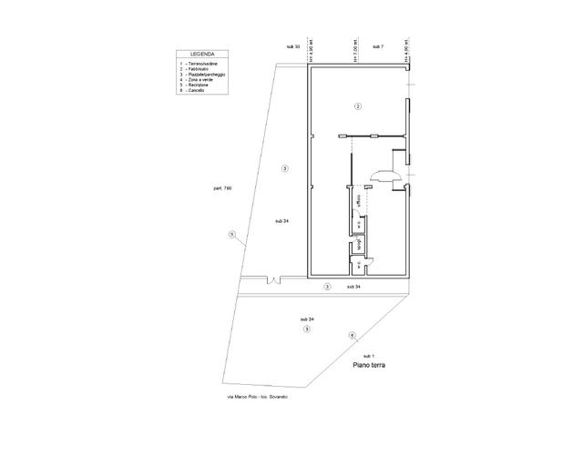
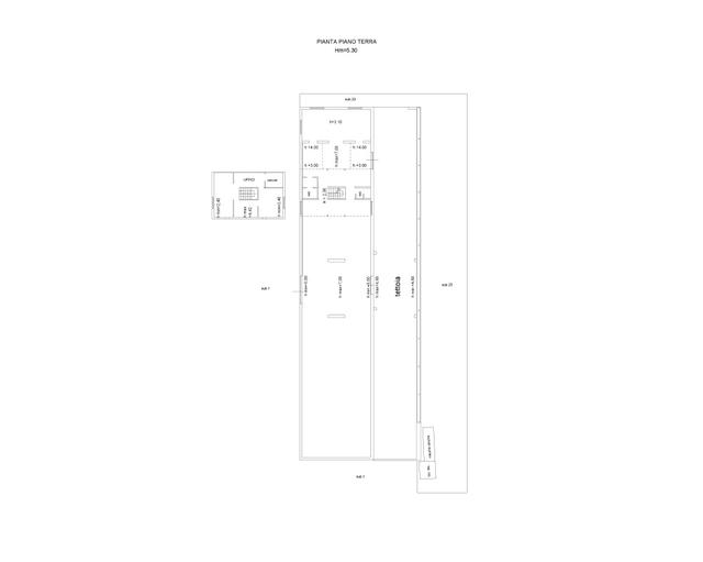
Proponiamo in vendita un complesso industriale articolato in più capannoni situato nel Comune di Sciacca, in Contrada Isabella, Via Marco Polo n. 12, in posizione extraurbana facilmente accessibile tramite due ingressi carrabili con cancelli in ferro. Il compendio è costituito da un insieme di fabbricati con destinazioni miste produttive, artigianali e commerciali. Il Capannone A si sviluppa su una superficie coperta di circa 642 mq, con tettoia adiacente di circa 380 mq, e ospita anche una porzione su due livelli destinata ad attività commerciale, composta al piano terra da spazi vendita e servizi e al piano superiore da uffici e locale tecnico. Il Capannone B, di circa 715 mq, presenta una distribuzione interna articolata con spazi dedicati alla vendita, uffici, magazzini e laboratori, oltre a diversi locali accessori e depositi, alcuni dei quali sviluppati su più livelli o dotati di soppalco. Il Capannone C, con superficie di circa 480 mq, comprende sia spazi a uso magazzino sia una porzione commerciale composta da area espositiva, ufficio, locali tecnici, servizi e ambienti destinati a deposito, con accessi differenziati per il pubblico e per il carico/scarico merci. Il Capannone D, con circa 277 mq, ospita due diverse attività tra cui una concessionaria e un’officina. Gli ambienti risultano ben suddivisi tra aree espositive, officine operative, magazzini e servizi, con accessi multipli che facilitano la gestione delle attività. L’intero complesso rappresenta una soluzione ideale per attività produttive, logistiche o commerciali grazie alla versatilità degli spazi, alla presenza di numerosi accessi indipendenti e alla possibilità di utilizzo frazionato delle diverse unità. Si segnala che gli immobili risultano parzialmente occupati con indennità di occupazione, rendendo la proprietà interessante anche in ottica di investimento.
Dettagli
- Tipologia inserzionistaAzienda
- Ragione Socialeabilio - quimmo
- Partita IVA02410510396
- Comune inserzionistaFaenza (RA)
Posizione del bene
- Italia, Sciacca - Agrigento
Contatta l'inserzionista
AZIENDA
abilio - quimmo
oppure











