#2638729 Complesso commerciale
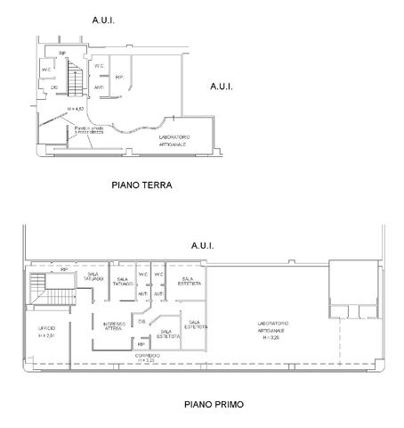
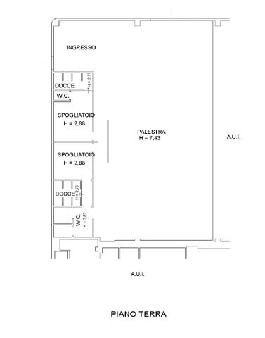
Proponiamo in vendita un compendio immobiliare composto da quattro unità, inserite all’interno di un più ampio fabbricato originariamente adibito a opificio e oggi caratterizzato da destinazione mista artigianale e commerciale. L’immobile, inizialmente realizzato con destinazione industriale, è stato oggetto di ristrutturazione tra il 2016 e il 2018, con successiva suddivisione in più unità funzionali destinate ad attività commerciali, artigianali e sportive. Il complesso comprende: - un’unità catastale D/6 destinata ad attività sportiva, composta da ingresso, ampio vano palestra, spogliatoi con bagni e docce; - un’unità catastale D/8 destinata ad attività di ristorazione, composta da sala ristorante, area lavorazione/cucina, ufficio-ripostiglio e servizi; - un’unità catastale D/7 a destinazione artigianale, distribuita su due livelli, con laboratorio, uffici, locali per attività estetiche/tatuaggi, ripostigli e servizi; - un’unità catastale D/1 ad uso deposito, composta da vano magazzino con servizio igienico. Il fabbricato è situato nel comune di Corropoli, in una zona periferica caratterizzata da una spiccata vocazione produttiva e commerciale. Il contesto si sviluppa lungo Viale Adriatico (SS259), importante arteria di collegamento tra l’entroterra della Val Vibrata e la costa adriatica. La posizione lungo la strada statale garantisce ottima visibilità, facilità di accesso e buona viabilità, rendendo la proprietà particolarmente interessante per attività produttive, commerciali o per investitori alla ricerca di un complesso polifunzionale.
Dettagli
- Tipologia inserzionistaAzienda
- Ragione Socialeabilio - quimmo
- Partita IVA02410510396
- Comune inserzionistaFaenza (RA)
Posizione del bene
- Italia, Corropoli - Teramo
Contatta l'inserzionista
AZIENDA
abilio - quimmo
oppure











