#2638603 Edificio commerciale/direzionale a reddito
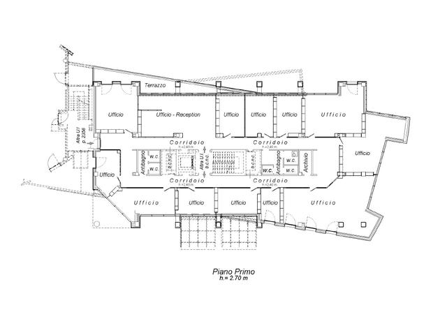
Proponiamo in vendita un edificio cielo-terra a destinazione mista situato a Perugia, in Via Giovanni Pontani n. 39, in un contesto urbano ben servito e facilmente accessibile. Il fabbricato si sviluppa su quattro piani fuori terra, oltre a un piano interrato adibito ad autorimessa, ed è caratterizzato da una funzionale distribuzione degli spazi. Al piano terra sono presenti attività commerciali, mentre i piani superiori ospitano prevalentemente uffici e spazi direzionali. Il quarto piano è destinato a locali tecnici a servizio dell’edificio. All’interno del complesso trovano spazio uffici, un’attività di bar e una sala conferenze, rendendo l’immobile versatile e adatto a diverse tipologie di utilizzo, sia professionale che commerciale. L’ampia autorimessa interrata rappresenta un importante valore aggiunto, garantendo comodità di accesso e parcheggio per conduttori, dipendenti e clientela. L’immobile risulta attualmente locato per circa il 90%, configurandosi come una solida opportunità di investimento a reddito, con elevato grado di occupazione e buona redditività complessiva. Soluzione ideale per investitori alla ricerca di un asset direzionale/commerciale già a reddito, in una delle principali città dell’Umbria.
Dettagli
- Tipologia inserzionistaAzienda
- Ragione Socialeabilio - quimmo
- Partita IVA02410510396
- Comune inserzionistaFaenza (RA)
Posizione del bene
- Italia, Perugia - Perugia
Contatta l'inserzionista
AZIENDA
abilio - quimmo
oppure











