#2638612 AFFITTO - Immobile commerciale frazionabile
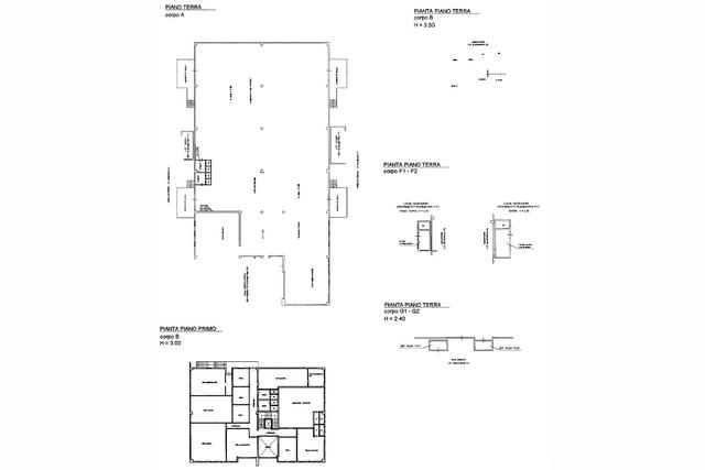
Proponiamo in locazione importante complesso immobiliare cielo-terra con area esterna esclusiva, ubicato in posizione strategica nella zona produttivo-commerciale di Molfetta. L’immobile è un D/8 (fabbricati costruiti o adattati per speciali esigenze commerciali) con possibilità di utilizzo per attività di: media distribuzione, retail specializzato, Cash & Carry, showroom con deposito o logistica con front office commerciale SUPERFICI Nuova configurazione commerciale autorizzata: Superficie commerciale totale: 1.260 mq Magazzini complessivi: circa 600 mq Possibilità di frazionamento in 2 unità autonome Ogni porzione: 600/650 mq area vendita 300 mq circa di magazzino Soluzione ideale per brand che necessitano di spazi espositivi importanti con retro deposito integrato. AREA ESTERNA ESCLUSIVA Il compendio dispone di: piazzali di manovra per mezzi pesanti, aree carico/scarico, parcheggi, lotto indipendente e recintato e videosorveglianza perimetrale Perfettamente funzionale per attività a medio/alto flusso logistico. CARATTERISTICHE TECNICHE Immobile indipendente accessi carrabili e pedonali, distribuzione interna funzionale, agibilità presente, destinazione commerciale già autorizzata PLUS STRATEGICI Categoria D/8 pura Permesso già ottenuto per configurazione commerciale Soluzione modulabile Frazionabile Ideale per brand nazionali / catene strutturate Ottimo rapporto superficie / funzionalità
Dettagli
- Tipologia inserzionistaAzienda
- Ragione Socialeabilio - quimmo
- Partita IVA02410510396
- Comune inserzionistaFaenza (RA)
Posizione del bene
- Italia, Molfetta - Bari
Contatta l'inserzionista
AZIENDA
abilio - quimmo
oppure











