#2638611 Capannone industriale/commerciale fronte strada – altissima visibilità
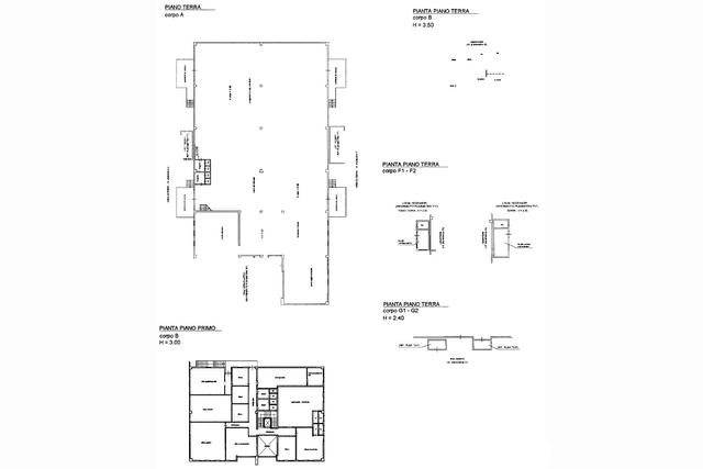
In posizione strategica di primissimo livello, fronte strada su Viale Adriano Olivetti con eccellente esposizione e visibilità dalla SS16bis, proponiamo in vendita complesso immobiliare cielo-terra con area esterna esclusiva. Una location che garantisce riconoscibilità immediata, facilità di accesso e forte impatto commerciale. CARATTERISTICHE PRINCIPALI Capannone produttivo (cat. D/1e D/8), ampio vano lavorazione/magazzino al piano terra, altezza interna industriale, accessi carrabili per carico/scarico, locali accessori: spogliatoi, servizi igienici, locali tecnici, collegamento interno con zona uffici Soluzione ideale per attività produttive, logistiche, deposito o lavorazioni artigianali Zona uffici e direzionale (cat. D/8) Ingresso dedicato, uffici amministrativi e direzionali, servizi igienici e distribuzione su più livelli. Separazione funzionale tra area produttiva e area direzionale. Perfetta per aziende strutturate che necessitano di rappresentanza. PLUS STRATEGICO: VARIAZIONE COMMERCIALE GIÀ APPROVATA È già stato ottenuto permesso per variazione di destinazione d’uso commerciale con nuova configurazione urbanistica conforme ai parametri. Superficie commerciale autorizzata: circa 1.260 mq, magazzini complessivi: circa 600 mq, divisibile in 2 unità autonome e fondibili. Ogni porzione può prevedere: 600/650 mq area vendita, 300 mq magazzino, 40 mq ufficio interno, 30 mq servizi e area servizi al pubblico dedicata. Layout completamente ridisegnabile, magazzini modulari, parcheggi garantiti e area esterna esclusiva. Un asset che può trasformarsi in: Media struttura commerciale, showroom, retail specializzato, cash & carry o centro servizi POSIZIONE Fronte strada Viale Adriano Olivetti, collegamento diretto con SS16bis, zona industriale consolidata, facilità di manovra per mezzi pesanti. Area ad alta vocazione produttiva e commerciale. La visibilità è un vantaggio competitivo reale. STATO LOCATIVO Attualmente locato con contratto in scadenza 30/06/2026. Possibile valutazione sia come: investimento a reddito o acquisto per utilizzo diretto PREZZO RICHIESTO Valutazioni di mercato differenziate in funzione dello scenario locativo. Posizione strategica di alta visibilità, doppia destinazione (produttiva/commerciale), asset trasformabile, area esterna esclusiva e forte appeal per brand strutturati
Dettagli
- Tipologia inserzionistaAzienda
- Ragione Socialeabilio - quimmo
- Partita IVA02410510396
- Comune inserzionistaFaenza (RA)
Posizione del bene
- Italia, Molfetta - Bari
Contatta l'inserzionista
AZIENDA
abilio - quimmo
oppure











