#2537836 Fabbricato con ufficio appartamento e laboratorio
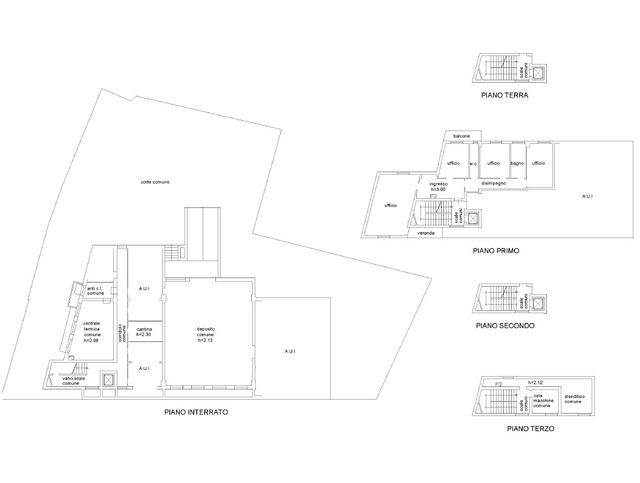
Proponiamo in vendita un interessante complesso immobiliare situato in una zona comoda e servita di Cesena, in Via Federico Comandini. La proprietà si compone di un appartamento, un ufficio e un laboratorio, offrendo una soluzione versatile ideale sia per investimento sia per chi necessita di spazi residenziali e professionali nello stesso contesto. Al pino primo si trovano l’appartamento e l'ufficio con ambienti ampi e ben distribuiti, adatti ad accogliere una famiglia o ad essere convertiti in ulteriori spazi direzionali. Al piano terra e seminterrato si trovano invece il laboratorio e vani direzionali, caratterizzati da ambienti funzionali, vani tecnici e magazzini, adatti ad attività professionali, artigianali o direzionali. Gli spazi risultano flessibili e facilmente adattabili a diverse esigenze operative. La posizione, a pochi minuti dal centro cittadino e ben collegata alla viabilità principale, rende il fabbricato particolarmente interessante per chi cerca un immobile multifunzionale in una zona strategica di Cesena. Segnaliamo che l'immobile risulta parzialmente locato con regolare contratto.
Dettagli
- Tipologia inserzionistaAzienda
- Ragione Socialeabilio - quimmo
- Partita IVA02410510396
- Comune inserzionistaFaenza (RA)
Posizione del bene
- Italia, Cesena - Forlì-Cesena
Contatta l'inserzionista
AZIENDA
abilio - quimmo
oppure











