#2537510 Capannoni industriali con uffici ad Altopascio
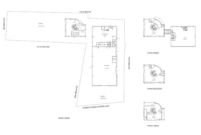
In vendita immobile industriale ad Altopascio (LU), situato in posizione strategica e ben collegata alle principali arterie viarie della zona. La proprietà, con una superficie commerciale complessiva di 3.558 mq, rappresenta una soluzione ideale per attività produttive, logistiche o direzionali. L’edificio si sviluppa su più livelli: al piano terra si trovano un ampio ingresso con area reception e attesa clienti, una resede esclusiva e spazi dedicati a laboratorio, magazzino, locali tecnici, spogliatoi e servizi per il personale. I tre piani superiori ospitano uffici luminosi e ben distribuiti, oltre a servizi e locali accessori, offrendo ambienti funzionali e facilmente adattabili a diverse esigenze operative. L’immobile, grazie alla posizione favorevole nel comune di Altopascio, garantisce ottima accessibilità e visibilità, inserendosi in un contesto produttivo e commerciale dinamico, servito da tutte le principali infrastrutture e servizi. Una soluzione versatile, adatta a imprese che cercano spazi moderni e ben organizzati in un punto strategico della Toscana.
Dettagli
- Tipologia inserzionistaAzienda
- Ragione Socialeabilio - quimmo
- Partita IVA02410510396
- Comune inserzionistaFaenza (RA)
Posizione
- Posizione beneItalia, Altopascio - Lucca
Contatta l'inserzionista
AZIENDA
abilio - quimmo
oppure











