#2537069 Capannone industriale e commerciale
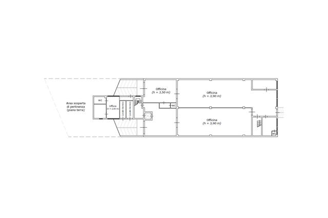
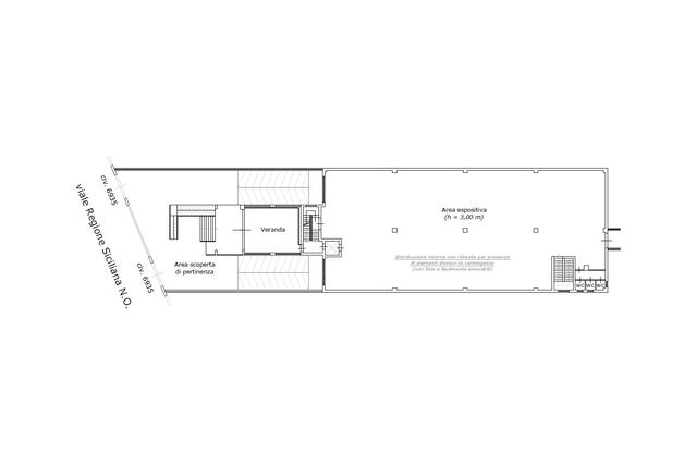
Complesso industriale-commerciale sito a Palermo (PA), quartiere San Lorenzo/Cardillo, viale della Regione Siciliana Nord Ovest 6935 e via Ugo La Malfa 64. Zona strategica per attività industriali e logistiche. Struttura pluripiano composta da due edifici collegati tra loro, e corte scoperta con accessi carrabili su strada. Il primo edificio (subalterni 1-2) ha ampio capannone a forma rettangolare su due piani e palazzina uffici. Include officina, servizi, vani tecnici, uffici, reception, area espositiva e ampio open-space con balconi. Il secondo edificio (subalterni 3-4) ospita uffici, showroom, servizi, ripostigli e ampi locali pluriuso. Include il piano terra adibito a parcheggio e il lastrico solare con allocati locali tecnici. Presenti impianto elettrico, idrico, di scarico, ascensori e riscaldamento centralizzato (dismesso). Rilevate difformità catastali ed urbanistiche. Maggiori dettagli disponibili in perizia. Condizioni generali discrete. Beni mobili e arredi esclusi dalla vendita. Area di sedime: circa 1860,00 mq Superficie commerciale: circa 4287,00 mq
Dettagli
- Tipologia inserzionistaAzienda
- Ragione Socialeabilio - quimmo
- Partita IVA02410510396
- Comune inserzionistaFaenza (RA)
Posizione del bene
- Italia, Palermo - Palermo
Contatta l'inserzionista
AZIENDA
abilio - quimmo











