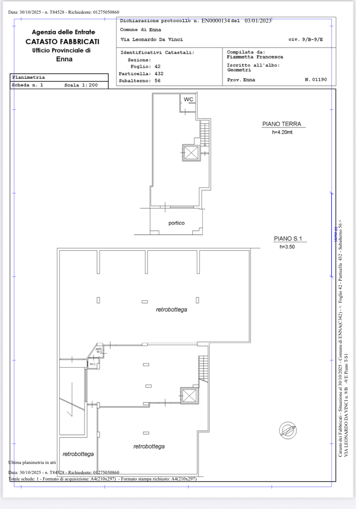
Locale commerciale in zona strategica
Affittasi Locale Commerciale in Zona Strategica e di grande passaggio facilmente raggiungibile a piedi o in auto all' ingresso di Enna bassa a soli 150 mq dal terminal autobus ; ideale per ogni tipo di attività commerciale che richiede una adeguata presenza sul mercato , o attività dedicate alla cura della persona ed al fitness; libero da gennaio totalmente ristrutturato su due piani serviti da ascensore omologato 9 persone ; possibilità di grande area di parcheggio autonomo coperto ;
Dettagli
- Tipologia inserzionistaPrivato
- Inserzionistaantonino
- Comune inserzionistaEnna (EN)
- Classe energeticaA2
- Superficie350 mq
Posizione del bene
- Italia, Enna - Enna








