#2537367 Negozio con corte in edificio polifunzionale
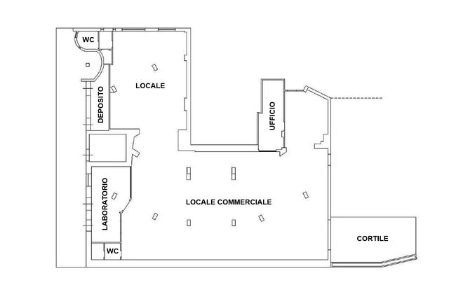
Negozio sito a Tusa (ME), frazione Castel di Tusa, via Nazionale 1-1A (fronte Piazza Stazione). Il contesto è semicentrale con traffico regolare. La zona è urbanizzata, attrezzata per la stagione balneare, caratterizzata da case, negozi, ristoranti e parcheggi sufficienti. L’area è ben collegata al mare, al borgo e alle infrastrutture. Trattasi di locale commerciale al piano terra di edificio polifunzionale a torre, con accesso prospiciente al parcheggio della vicina stazione ferroviaria. Composto da area vendite, servizi igienici, laboratori, depositi, vani tecnici e ufficio. Una porzione del cortile di ingresso è privata. Finiture standard. Climatizzazione autonoma. Classe energetica E. Condizioni buone. Beni mobili esclusi dalla vendita. Superficie: 392 mq circa (fonte: titoli edilizi) Per maggiori dettagli consultare i dati tecnici allegati Piena proprietà di: CF: Foglio 6 – Particella 95 – Subalterno 34 – D/8
Dettagli
- Tipologia inserzionistaAzienda
- Ragione Socialeabilio - quimmo
- Partita IVA02410510396
- Comune inserzionistaFaenza (RA)
Posizione del bene
- Italia, Tusa - Messina
Contatta l'inserzionista
AZIENDA
abilio - quimmo
oppure











