#2638661 Fabbricato produttivo su più livelli
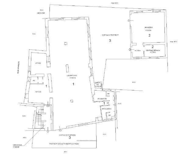
Proponiamo in vendita un capannone industriale situato a Varese, in via Lorenzo Ghiberti 8, inserito all’interno di un più ampio complesso produttivo. L’immobile si sviluppa su più livelli fuori terra e presenta una superficie complessiva di circa 953 mq, offrendo spazi ampi e ben distribuiti, adatti a diverse tipologie di attività produttive, artigianali o logistiche. All’interno sono presenti laboratori disposti su tre livelli, oltre ad aree direzionali, uffici e locali ad uso deposito, che consentono una gestione funzionale ed efficiente delle attività aziendali. La configurazione degli ambienti permette una chiara distinzione tra le zone operative e quelle amministrative, garantendo al contempo praticità e flessibilità di utilizzo. Completa la proprietà un’area scoperta esclusiva di circa 195 mq, ideale per le operazioni di manovra, carico e scarico e per le esigenze di accesso dei mezzi. La collocazione in un contesto produttivo consolidato e ben servito rende questa proposta una soluzione interessante per imprese alla ricerca di un immobile funzionale e versatile.
Dettagli
- Tipologia inserzionistaAzienda
- Ragione Socialeabilio - quimmo
- Partita IVA02410510396
- Comune inserzionistaFaenza (RA)
Posizione del bene
- Italia, Varese - Varese
Contatta l'inserzionista
AZIENDA
abilio - quimmo
oppure











