#2638640 Ampio locale commerciale
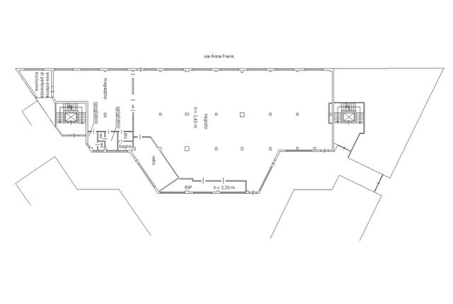
Proponiamo in vendita un ampio negozio precedentemente adibito a supermercato, situato a Legnano in via Saronnese 44, all’interno del noto centro commerciale “Il Triangolo”, contesto consolidato e facilmente riconoscibile. L’immobile si sviluppa principalmente in un grande spazio open space con altezze generose, ideale per attività di vendita al dettaglio, grande distribuzione, showroom o altre destinazioni commerciali che richiedano superfici ampie e flessibili. La distribuzione interna consente una facile riorganizzazione degli ambienti in base alle esigenze operative. Completano la proprietà locali accessori funzionali all’attività, tra cui aree di servizio, spogliatoi, magazzino e locali tecnici, oltre a spazi dedicati al carico e scarico delle merci, elementi che rendono l’immobile particolarmente adatto ad attività strutturate. La posizione all’interno di un centro commerciale garantisce ottima visibilità, flussi costanti di clientela e comodità di accesso, oltre alla presenza di parcheggi a servizio della struttura. Una soluzione di sicuro interesse per operatori commerciali o investitori alla ricerca di un immobile di grande metratura, inserito in un contesto dinamico e ben servito.
Dettagli
- Tipologia inserzionistaAzienda
- Ragione Socialeabilio - quimmo
- Partita IVA02410510396
- Comune inserzionistaFaenza (RA)
Posizione del bene
- Italia, Legnano - Milano
Contatta l'inserzionista
AZIENDA
abilio - quimmo
oppure











