#2638635 Negozio con parcheggio
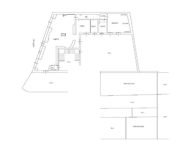
Proponiamo in vendita un negozio con due ampie vetrine situato a Pralboino, in via Fornaci 6/8, in posizione facilmente accessibile e con buona visibilità dalla strada. L’unità, posta al piano terra, si sviluppa con un ampio spazio commerciale adatto all’accoglienza del pubblico, affiancato da locali di servizio funzionali all’attività, tra cui ufficio, servizi igienici e deposito. La distribuzione interna consente una gestione flessibile degli spazi, rendendo l’immobile idoneo a diverse tipologie di attività commerciali o di servizio. Completano la proprietà due aree esclusive adibite a parcheggio, un valore aggiunto rilevante sia per la clientela sia per il personale, che garantisce comodità di accesso e fruibilità quotidiana. La soluzione rappresenta un’interessante opportunità per chi è alla ricerca di un locale commerciale ben visibile, con spazi accessori e parcheggi privati in una zona servita del comune.
Dettagli
- Tipologia inserzionistaAzienda
- Ragione Socialeabilio - quimmo
- Partita IVA02410510396
- Comune inserzionistaFaenza (RA)
Posizione del bene
- Italia, Pralboino - Brescia
Contatta l'inserzionista
AZIENDA
abilio - quimmo
oppure











