#2638457 Bari Ufficio Via Don Guanella 15/G con posto auto
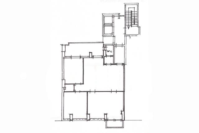
In elegante edificio direzionale dotato di ascensore, proponiamo in vendita un ampio ufficio di 154 m², perfetto per studi professionali, società di servizi e attività direzionali che cercano una sede rappresentativa e funzionale. Caratteristiche principali · Sei vani spaziosi e molto luminosi, con affacci aperti e ottima esposizione. · Layout modulabile, ideale per creare zone operative, sale riunioni o uffici direzionali. · Posto auto coperto in garage, comodità rara nella zona. · Categoria catastale A/10, pronta per uso ufficio. Posizione strategica Situato nel cuore di Poggiofranco, uno dei quartieri più ricercati di Bari, l’immobile si trova a soli 200 metri dal Tribunale, in un contesto elegante, servito da attività commerciali, mezzi pubblici e con buona disponibilità di parcheggio.
Dettagli
- Tipologia inserzionistaAzienda
- Ragione Socialeabilio - quimmo
- Partita IVA02410510396
- Comune inserzionistaFaenza (RA)
Posizione del bene
- Italia, Bari - Bari
Contatta l'inserzionista
AZIENDA
abilio - quimmo
oppure











