#2537580 Ufficio al primo piano
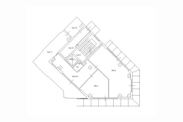
In Piazza John Fitzgerald Kennedy n. 1, nel Comune di Avezzano, è disponibile in vendita un ufficio situato al primo piano di uno stabile condominiale. L’accesso avviene tramite un ingresso dedicato che conduce a due ambienti distinti, entrambi adibiti a ufficio. Gli spazi sono luminosi e ben proporzionati, ideali per attività direzionali, studi tecnici o professionali. È presente un servizio igienico, e l’altezza interna di 3 metri contribuisce a rendere gli ambienti confortevoli e ariosi. La posizione al primo piano garantisce facilità di accesso, mantenendo al contempo la riservatezza necessaria per un contesto lavorativo. L’immobile si trova in una delle piazze più centrali e riconoscibili di Avezzano, ben servita da mezzi pubblici e vicina a parcheggi e servizi. Possibilità di acquisto a parte di porzione di deposito al piano interrato e Posto auto al piano interrato. Questa proposta è particolarmente interessante per chi cerca uno spazio pronto all’uso in una zona strategica.
Dettagli
- Tipologia inserzionistaAzienda
- Ragione Socialeabilio - quimmo
- Partita IVA02410510396
- Comune inserzionistaFaenza (RA)
Posizione
- Posizione beneItalia, Avezzano - L'Aquila
Contatta l'inserzionista
AZIENDA
abilio - quimmo
oppure











