#25772 Uffici al primo piano con posti auto coperti
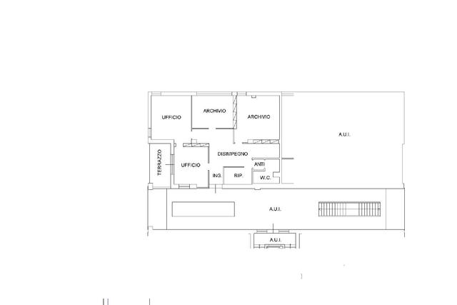
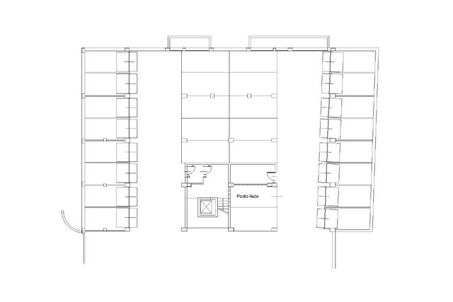
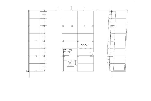
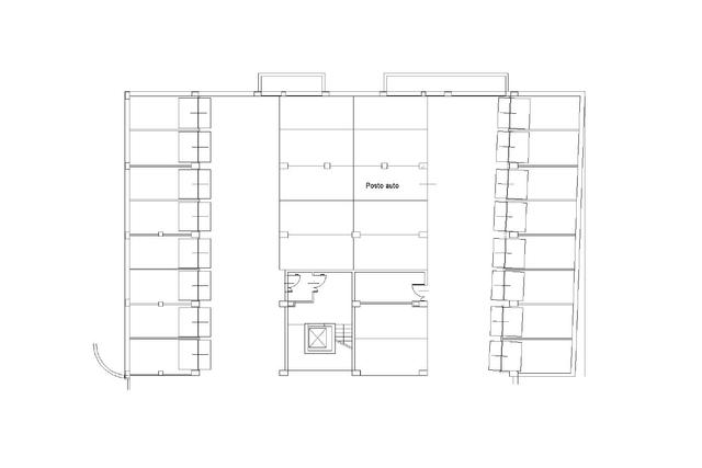
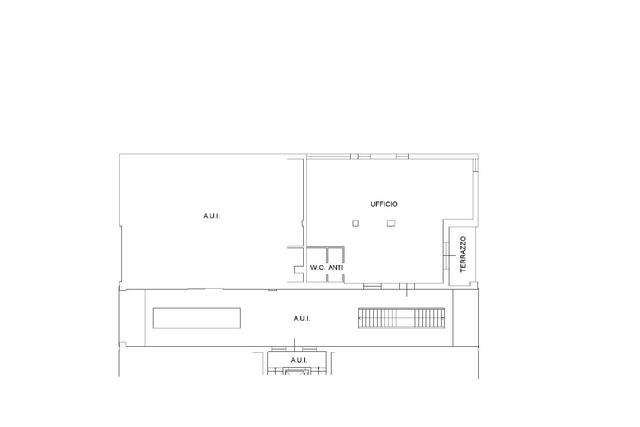
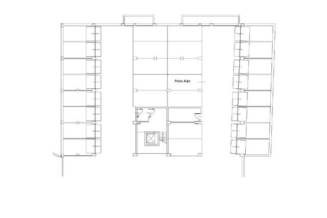
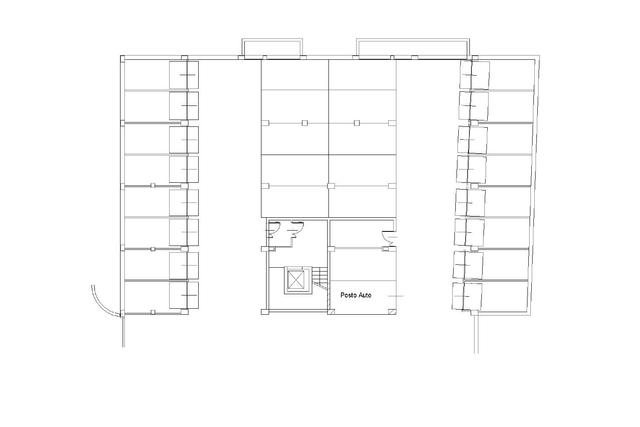
Situato nel centro del Comune di Rubiera (RE), in Via della Stazione, proponiamo in vendita tre unità immobiliari ad uso ufficio con cinque posti auto coperti. I beni fanno parte di una palazzina moderna e costruita da pochi anni in una zona dove sono presenti fiorenti attività commerciali. Gli ambienti risultano molto personalizzabili in base alle specifiche dell’acquirente. Le tre unità immobiliari ad uso ufficio sono molto luminosi, si trovano tutte nel primo piano dell’edificio, sono dotate di servizi igienici ed aree archivio e si prestano all’utilizzo di attività direzionali e da uffici. I cinque posti auto coperti si trovano nel piano sotto strada dell’edificio. Il bene si trova a poche decine di metri dalla stazione ferroviaria di Rubiera, ben collegata ai mezzi pubblici; l’uscita autostradale “A1” di Modena Nord dista circa 3 km. Superficie commerciale: circa 676,00 mq Classe Energetica “B”
Dettagli
- Tipologia inserzionistaAzienda
- Ragione Socialeabilio - quimmo
- Partita IVA02410510396
- Comune inserzionistaFaenza (RA)
Posizione del bene
- Italia, Rubiera - Reggio Emilia
Contatta l'inserzionista
AZIENDA
abilio - quimmo











