#2537511 Capannone con uffici a Terranuova Bracciolini
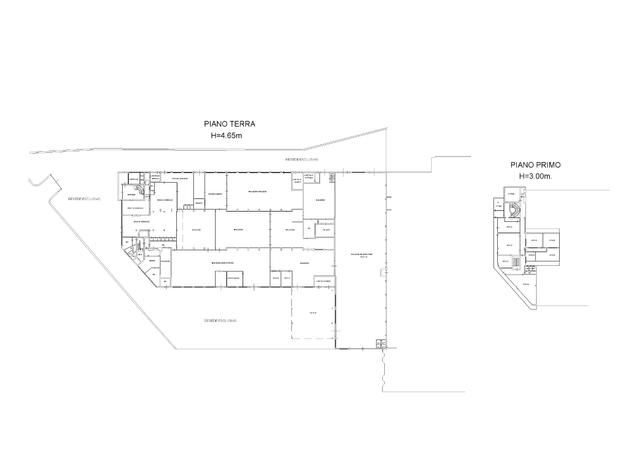
In vendita capannone con uffici e magazzino situato a Terranuova Bracciolini (AR), in Via Gangehreto 59, all’interno di una delle principali aree industriali del territorio. L’immobile si sviluppa su due piani fuori terra e dispone di un resede esclusivo che garantisce ampi spazi per parcheggio, carico e scarico merci. Al piano terra sono presenti un ampio deposito, un ripostiglio, uffici operativi, servizi igienici con antibagno e un locale caldaia. Il piano primo è interamente destinato ad uffici direzionali, anch’essi dotati di servizi. La zona industriale di Terranuova Bracciolini rappresenta un punto strategico per le attività manifatturiere e commerciali, grazie alla facile accessibilità, alla presenza di infrastrutture moderne e alla buona viabilità che la collega alle principali arterie della provincia di Arezzo. Una soluzione ideale per aziende che cercano spazi funzionali e ben organizzati, perfetta per attività logistiche, produttive o direzionali.
Dettagli
- Tipologia inserzionistaAzienda
- Ragione Socialeabilio - quimmo
- Partita IVA02410510396
- Comune inserzionistaFaenza (RA)
Posizione del bene
- Italia, Terranuova Bracciolini - Arezzo











