#2537284 Capannone artigianale con uffici e soppalco
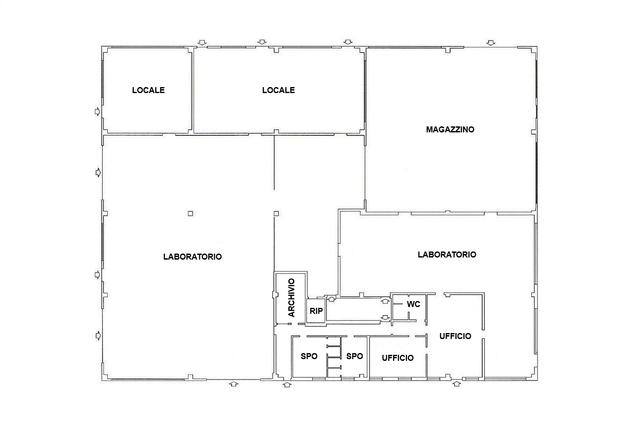
Capannone sito a Carrù (CN), strada Monviso 2-4. Il contesto è periferico e poco trafficato. La zona è rurale, caratterizzata da terreni coltivati, case isolate e strutture produttive di nuovo impianto. L’area è ben collegata al paese ove si trovano i principali servizi e alla autostrada A6 (casello Carrù). Trattasi di edificio su due livelli realizzato nel 2005 con struttura prefabbricata in cemento armato. Agibilità rilasciata. Fabbricato al centro di corte illuminata, parzialmente recintata e dotata di due accessi carrabili. Piano terra con due laboratori doppia altezza, vani tecnici, magazzino, uffici, spogliatoi e wc. Piano primo con comodo soppalco ad uso deposito servito da scala metallica interna. Presente piccolo locale esterno, non accatastato, sfruttato per ricovero materiale. Pavimenti in cemento lisciato e piastrelle. Infissi in metallo. Portoni carrabili. Uffici e servizi climatizzati con diffusori ad aria installati nel controsoffitto. Condizioni molto buone. Presente materiale di vario genere. Superficie complessiva: 2935 mq (fabbricato) CAPANNONE ARTIGIANALE Laboratorio e uffici: 1980 mq Soppalco sgombra roba: 955 mq Cortile carrabile: 3300 mq La vendita di materiali lapidei e arredi avverrà sul portale Industrial Discount. Per maggiori dettagli visita la pagina sotto indicata: >>[SCHEDA INDUSTRIAL DISCOUNT](https://www.industrialdiscount.it/aste/asta-di-materiali-lapidei-e-arredi-9580/)
Dettagli
- Tipologia inserzionistaAzienda
- Ragione Socialeabilio - quimmo
- Partita IVA02410510396
- Comune inserzionistaFaenza (RA)
Posizione del bene
- Italia, Carrù - Cuneo
Contatta l'inserzionista
AZIENDA
abilio - quimmo
oppure











