#23329 Porzione di fabbricato industriale al piano primo con rampa carrabile
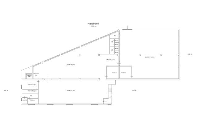
Immobile produttivo, situato in Via Walter Tobagi n. 63 a San Salvo, offre una solida opportunità per attività industriali e commerciali. - Posizione Strategica: L’immobile è collocato nella zona industriale di San Salvo, a Est del Comune. La sua vicinanza all’Autostrada Adriatica (a soli 300 metri) lo rende facilmente accessibile per il trasporto di merci e materiali. - Struttura Spaziosa: L’immobile occupa parte del piano primo di un fabbricato. Internamente, troverete 3 vani laboratori, un ufficio, servizi igienici e ripostigli. Questa disposizione flessibile consente di adattare gli spazi alle esigenze specifiche dell’attività. - Accessibilità: L’immobile è raggiungibile tramite vano scala interno o rampa carrabile esterna, garantendo un facile movimento di persone e mezzi. - Potenziale di Crescita: La posizione in una zona industriale in espansione offre opportunità di sviluppo e crescita per le imprese. La vicinanza all’autostrada facilita la logistica e la distribuzione. Classe energetica: “G” 127,69 kwh/m2 anno Superficie Produttivo: c.a. 840 mq Superfici pertinenziali esterne: c.a. 386 mq Si segnala che l’immobile risulta ubicato all'interno del Comprensorio A.S.I. (Consorzio Industriale del Valtese) Piena proprietà: D/1 (CF): Foglio 5 – Particella 707 – Subalterno 27 F/1 (CF): Foglio 5 – Particella 707 – Subalterno 11, 17, 21, 22. Il prezzo è da intendersi iva esclusa (tipicamente aliquota pari al 22%). La proprietà si rende disponibile all’applicazione del reverse charge IVA.
Dettagli
- Tipologia inserzionistaAzienda
- Ragione Socialeabilio - quimmo
- Partita IVA02410510396
- Comune inserzionistaFaenza (RA)
Posizione del bene
- Italia, San Salvo - Chieti
Contatta l'inserzionista
AZIENDA
abilio - quimmo











