#14672 Porzione di capannone artigianale al piano primo
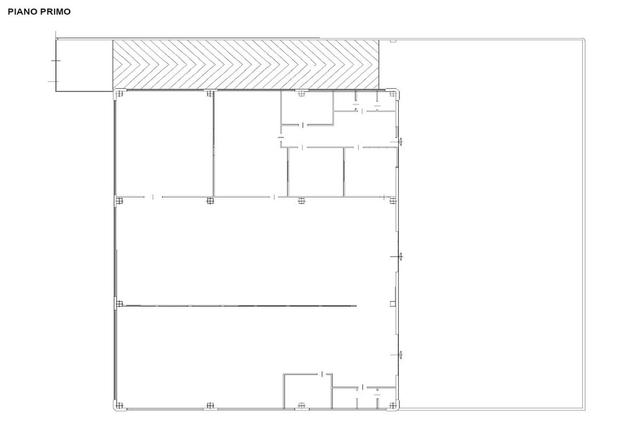
Vendesi porzione di capannone artigianale al piano primo sito a Monte San Savino (AR), Via Ponte All'Esse Vertighe snc. Zona periferica a prevalente destinazione produttiva-commerciale. L’immobile fa parte di un più vasto fabbricato, composto complessivamente da due unità e disposto su due piani fuori terra. Fabbricato realizzato con strutture prefabbricate in c.a.p., solaio di interpiano del tipo a lastra, copertura con travi ad Y e manto e controsoffitto in lastre di fibrocemento; le pareti esterne sono tamponate con pannelli prefabbricati con finitura in graniglia. L’unità in oggetto, costituisce l'intero primo piano dell'edificio ed è composta da ingresso-disimpegno, uffici, spogliatoio, magazzino, refettorio, tre locali adibiti a laboratorio e due gruppi di servizi igienici. Tale porzione è inoltre integrata da un ampio piazzale, realizzato su solaio sempre al piano primo e da rampa carrabile di accesso. Immobile libero. Condizioni buone. PER MAGGIORI DETTAGLI CONSULTARE I DOCUMENTI ALLEGATI. Classe energetica “C” Superficie commerciale: 780 mq Piena proprietà di: Laboratorio artigianale (CF): Foglio 93 – Particella 539 – Subalterno 2 – Cat C/3
Dettagli
- Tipologia inserzionistaAzienda
- Ragione Socialeabilio - quimmo
- Partita IVA02410510396
- Comune inserzionistaFaenza (RA)
Posizione
- Posizione beneItalia, Monte San Savino - Arezzo
Contatta l'inserzionista
AZIENDA
abilio - quimmo
oppure









