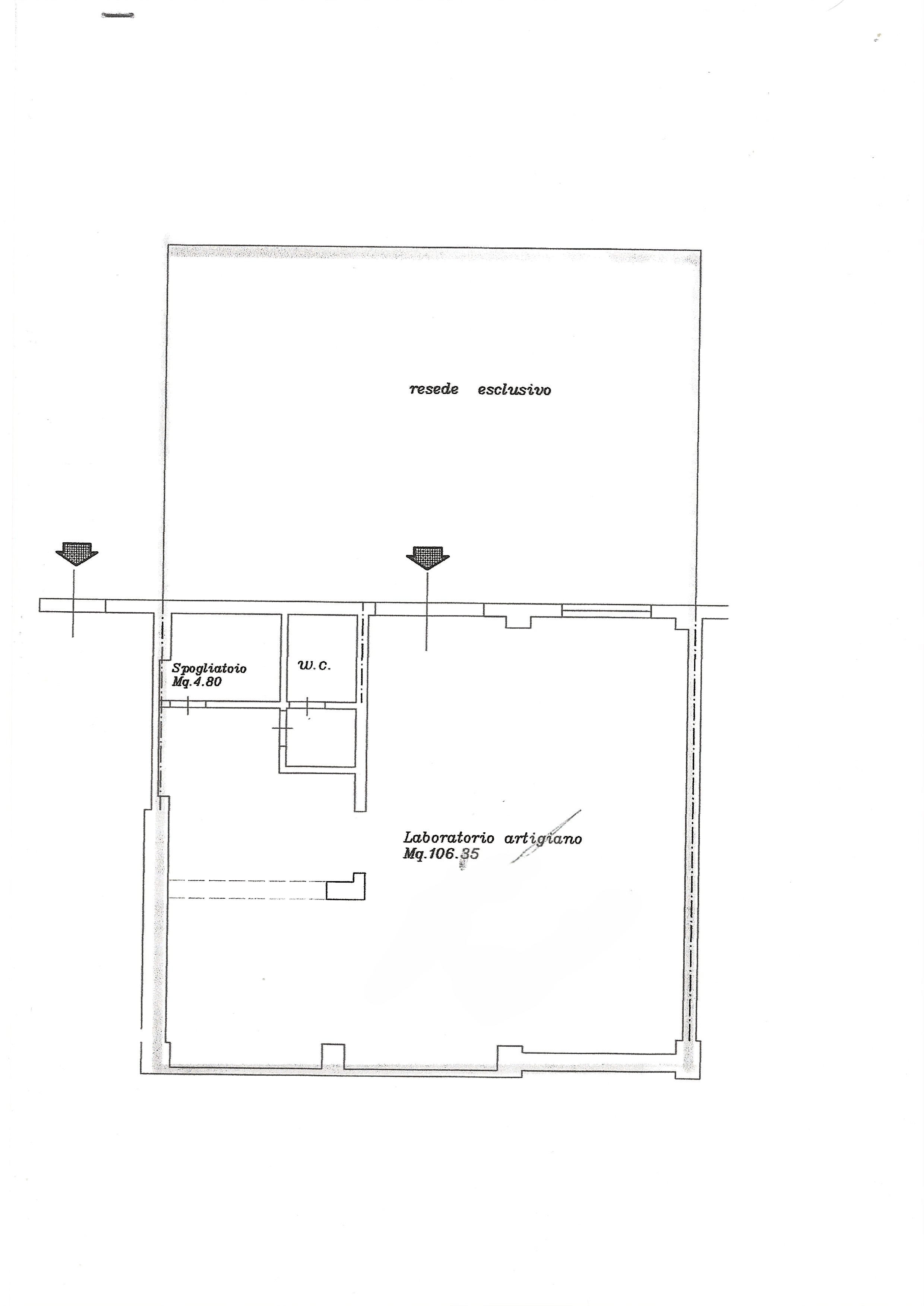
Laboratorio artigianale attrezzato 113 mq
Laboratorio artigianale di 113 mq in buone condizioni, completo di resede esclusiva di 95 mq utile per carico/scarico e lavorazioni esterne. L’immobile è suddiviso in due ampi vani oltre servizio igienico. Altezza interna che consente la realizzazione di soppalco o ulteriore piano operativo. Incluso nel prezzo parco macchine per falegnameria, ideale per avvio immediato dell’attività senza ulteriori investimenti. Spazio adatto anche ad altre attività artigianali e produttive (laboratorio creativo, officina specializzata etc.). Disponibilità ad affiancamento iniziale per utilizzo macchinari e subentro operativo.
Dettagli
- Tipologia inserzionistaPrivato
- InserzionistaGiovanni
- Comune inserzionistaCastelfiorentino (FI)
- Classe energeticaNon classificabile
- Superficie113 mq
Posizione del bene
- Italia, Castelfiorentino - Firenze
Contatta l'inserzionista
PRIVATO
Giovanni
oppure








