#2638209 Capannone con uffici
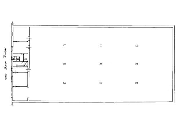
Capannone con uffici sito a Messina (ME), in Via Crose Rossa 19-21. Trattasi di ampio corpo di fabbrica composto da deposito/laboratorio e uffici, ideale per attività produttive, logistiche o artigianali, ubicato in zona centrale industriale. L’immobile dispone sia di ingresso pedonale sia di accesso carrabile, il piano terra ospita un grande vano deposito e locali accessori come spogliatoi, servizi, locale tecnico e ripostigli. Al piano primo si trovano due unità uso ufficio, luminose e funzionali, ciascuna composta da due locali e servizi. Il bene risulta non conforme ma regolarizzabile. Beni mobili inclusi nella presente vendita. Per maggiori informazioni vedasi documentazione allegata. Immobile descritto in Perizia allegata come “Lotto 2 e 3”.
Dettagli
- Tipologia inserzionistaAzienda
- Ragione Socialeabilio - quimmo
- Partita IVA02410510396
- Comune inserzionistaFaenza (RA)
Posizione del bene
- Italia, Messina - Messina











