#2537933 Capannone con uffici
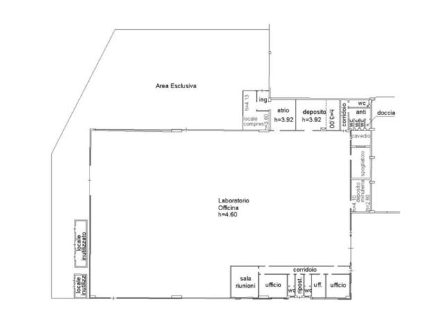
Capannone con uffici e corte esterna sito a Isola Vicentina (VI), in località Castelnovo, via Europa n.46. Trattasi di porzione di un più ampio complesso artigianale ubicato in zona produttiva ben collegata alla Strada Provinciale 46 del Pasubio. L’immobile comprende un’ampia area laboratorio, uffici, locali di servizio e deposito, oltre a un’area esterna scoperta di circa 900 mq, ideale per sosta e movimentazione merci. L’edificio, con struttura portante in cemento armato e tamponamenti in pannelli prefabbricati, presenta copertura piana con lucernari che garantiscono ottima luminosità naturale. Gli interni sono caratterizzati da finiture di buon livello, pavimenti in piastrelle e legno, servizi igienici rivestiti in ceramica e impianti funzionanti. Sono presenti non conformità, per maggiori informazioni vedasi documentazione allegata.
Dettagli
- Tipologia inserzionistaAzienda
- Ragione Socialeabilio - quimmo
- Partita IVA02410510396
- Comune inserzionistaFaenza (RA)
Posizione
- Posizione beneItalia, Isola Vicentina - Vicenza
Contatta l'inserzionista
AZIENDA
abilio - quimmo
oppure











