#2537818 Capannone con uffici e corte
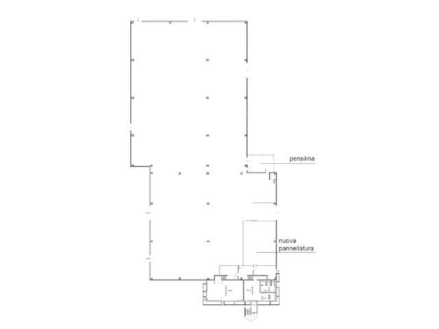
Capannone con uffici e corte sito a Vigevano (PV), in via Montebello n.70. Trattasi di ampio complesso immobiliare a destinazione produttiva situato in zona periferica ben collegata alle principali arterie stradali. Il bene è composto da un capannone industriale e un blocco uffici disposto su due livelli, piano rialzato e seminterrato. Il capannone è composto da un unico ampio vano dotato di lucernari che garantiscono ottima illuminazione naturale. Gli uffici, in buono stato conservativo, comprendono spazi direzionali, sala riunioni, servizi igienici e locali tecnici. Completa la proprietà una fascia di terreno pertinenziale di circa 354 m², utilizzata come marciapiede e area di accesso carrabile. Il bene risulta non conforme, per maggiori informazioni vedasi documentazione allegata. Recenti analisi hanno rilevato presenza di amianto.
Dettagli
- Tipologia inserzionistaAzienda
- Ragione Socialeabilio - quimmo
- Partita IVA02410510396
- Comune inserzionistaFaenza (RA)
Posizione del bene
- Italia, Vigevano - Pavia
Contatta l'inserzionista
AZIENDA
abilio - quimmo
oppure











