#2537526 Ampio negozio ex ristorante
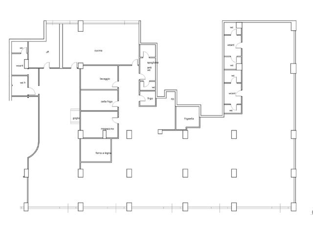
Proponiamo in vendita due unità commerciali adiacenti situate in Largo Carlo Salinari, nel quartiere Ardeatino, zona semicentrale del quadrante sud di Roma. L’immobile si trova al piano terra di un edificio misto residenziale e direzionale, in una zona ben servita da trasporti pubblici, con accesso diretto da via pubblica. A pochi minuti si trovano le fermate metro Eur Marconi ed Eur Magliana, la stazione Roma-Ostiense (4 km). La prima unità è composta da un ampio locale principale, due vani secondari, tre ripostigli e un bagno. Infissi esterni in alluminio e doppio vetro. È dotata di impianto elettrico, idrico e di condizionamento.. La seconda unità, era adibita a ristorante e si compone di una sala principale con servizi igienici per i clienti, zona cucina attrezzata, locali di preparazione e conservazione alimenti (magazzino, frigo, cella frigo, forno a legna), spogliatoi e bagni per il personale, uffici e ripostigli. Superficie lorda 817mq Soluzione ideale per attività commerciali, ristorazione o investimento a reddito in una zona urbana consolidata e ben collegata.
Dettagli
- Tipologia inserzionistaAzienda
- Ragione Socialeabilio - quimmo
- Partita IVA02410510396
- Comune inserzionistaFaenza (RA)
Posizione del bene
- Italia, Roma - Roma











