#2536259 Capannone ad uso artigianale
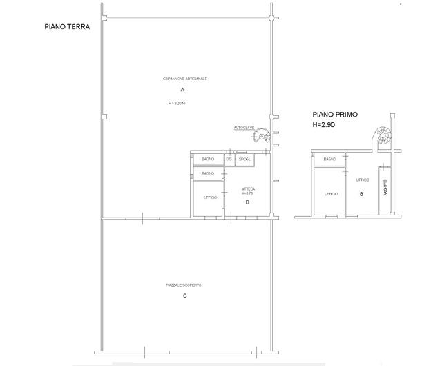
IMMOBILE ALL'ASTA CON INVITO AD OFFRIRE SACRICABILE TRA LA DOCUMENTAZIONE ALLEGATA Capannone industriale situato nella zona industriale di Modugno, in Via dei Falegnami, in posizione strategica e ben collegata alle principali arterie viarie. L’immobile si sviluppa su un lotto con ampio piazzale scoperto frontale, ideale come parcheggio per dipendenti e clienti o per agevoli operazioni di carico/scarico. La struttura è composta da un’ampia area produttiva con altezza interna di 8,20 m, che garantisce versatilità e spazi adatti a diverse tipologie di attività industriali e artigianali. Il blocco uffici, realizzato in aderenza al capannone, è distribuito su due livelli. Al piano terra si trovano uffici operativi, locali spogliatoio, servizi igienici e zona reception/attesa, mentre al piano primo sono presenti ulteriori ambienti direzionali con uffici, archivio e servizi, con altezza interna di 2,90 m. La configurazione degli spazi e la presenza di aree accessorie rendono l’immobile particolarmente funzionale per aziende alla ricerca di una sede produttiva completa, con ambienti già predisposti sia per la parte operativa che per quella gestionale. Soluzione ideale per imprese che desiderano insediarsi in una delle aree industriali più dinamiche della provincia di Bari.
Dettagli
- Tipologia inserzionistaAzienda
- Ragione Socialeabilio - quimmo
- Partita IVA02410510396
- Comune inserzionistaFaenza (RA)
Posizione del bene
- Italia, Modugno - Bari











