#23941 Ufficio al secondo piano
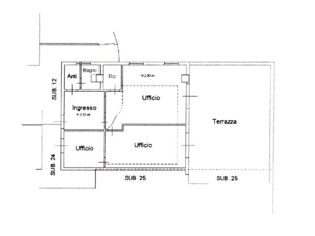
Ufficio al secondo piano sito a Pontedera (PI), in Piazza Nilde Lotti 13/19. Il bene è ricompreso al secondo e ultimo piano di un fabbricato di recente costruzione a destinazione commerciale e direzionale con ampio spazio adibito a parcheggi pubblici, ubicato nell’immediata periferia. L’ufficio è posto in zona privilegiata, con affaccio sulla piazza e ingresso in prossimità della scala principale e dell’ascensore. Internamente è composto da ingresso con antibagno e bagno, tre locali ad uso ufficio comunicanti e non disimpegnati autonomamente, ripostiglio e ampia terrazza.
Dettagli
- Tipologia inserzionistaAzienda
- Ragione Socialeabilio - quimmo
- Partita IVA02410510396
- Comune inserzionistaFaenza (RA)
Posizione del bene
- Italia, Pontedera - Pisa
Contatta l'inserzionista
AZIENDA
abilio - quimmo
oppure











