#21645 AFFITTO - Capannone ad uso commerciale
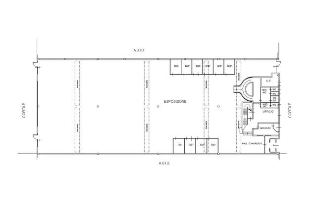
AFFITTO - Ampio spazio ad uso commerciale sito a Nerviano (MI), Via della Merlata snc. La proprietà è situata in una zona periferica, caratterizzata dalla presenza di edifici industriali ed artigianali. Vanta di un’ottima posizione ideale per la logistica, con accesso facile alla SS33 del Sempione. L’unità immobiliare fa parte di un più ampio edificio che si sviluppa su due livelli. Trattasi di unità commerciale caratterizzata al piano terra da un ampio locale openspace con ripostigli, uffici e servizi igienici; al piano primo, nella parte frontale si trova un luminoso locale espositivo. Essa vanta una superficie commerciale di circa 2000 mq, fornendo la possibilità di ospitare attività industriali ed artigianali. Nel complesso l’immobile versa in buone condizioni e risulta libero. Classe energetica D – EPgl 509,22 kWh/m2anno Piena proprietà di: Capannone commerciale (CF): Foglio 18 - Particella 168 - Subalterno 701 - Cat D/8 Sono compresi nella vendita i proporzionali diritti di comproprietà su beni comuni e spazi di uso comune.
Dettagli
- Tipologia inserzionistaAzienda
- Ragione Socialeabilio - quimmo
- Partita IVA02410510396
- Comune inserzionistaFaenza (RA)
Posizione del bene
- Italia, Nerviano - Milano
Contatta l'inserzionista
AZIENDA
abilio - quimmo











